STABILIMENTO ALIMENTARE, AGRATE BRIANZA
1995-2008
committente
NAVA GROUP SPA
attività svolte:
PROGETTO PRELIMINARE, DEFINITIVO, ESECUTIVO, DIREZIONE LAVORI
gruppo di lavoro
arch.ti CARLO e CLAUDIO CASTIGLIONI, CLAUDIO NARDI con MAURIZIO COLOMBO
consulenti
strutture SICAD ing.ri MARCO e PAOLO LUCCA
impianti elettrici ELETTROPROGETTI pi MASSIMO GRECO e GIORGIO BADIALI
impianti frigoriferi pi PAOLO BURANI
impianti meccanici pi GIULIANO MANDELLI
impianti di processo pi FABIO BIGNARDI
impianti depurazione dott GIANLUIGI PRESTINI
slp 14.000 mq
recensioni
Modulo 243/1998
mostre
Attraversamenti 2009 Biennale di Architettura Spoleto
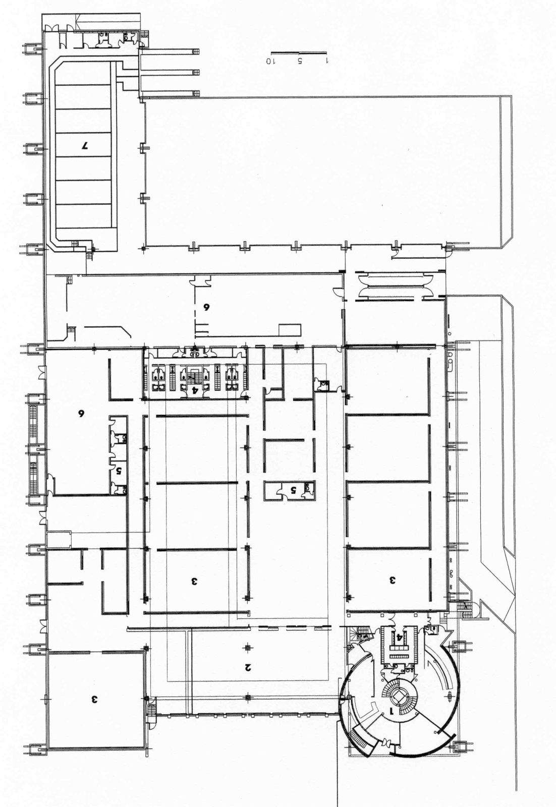
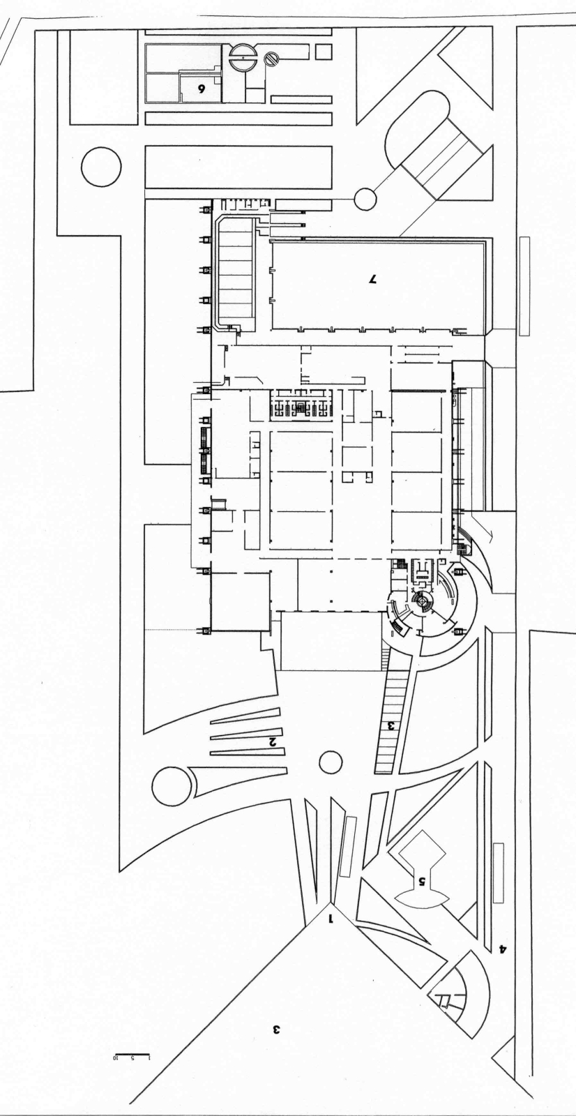
L’ elemento dominante di questo fabbricato è la grande copertura a botte. Il perimetro del fabbricato è sfrangiato dalle travi, dai pluviali e dai pilastri che debordano di varia misura oltre il perimetro dell’involucro. Il bordo della copertura è coronato da rebbi che, idealmente, prolungano la volta fino a terra. Le facciate sono decorate in più punti da colonne tecnologiche di vario diametro e sono ritmate dai pluviali, inclinati secondo il raggio della copertura, e dai pilastri.
Il tetto è frazionato in padiglioni con altezze differenziate. La divisione in più campi della copertura articola il complesso secondo un codice funzionale e ne riduce l’impatto visivo. La superficie coperta è di circa 7000 mq e si articola su due piani utili. Il livello inferiore (quasi totalmente interrato) ha struttura in c.a. prefabbricata con luce di 9,0 per 18,0 m. Il piano superiore prevede pilastri perimetrali in c.a. con sezione rettangolare che, orientati alternativamente nei due sensi, fungono da controventi. I pilastri centrali e la struttura di copertura sono in acciaio, le travi sono reticolari ed incrociate tra loro. L’acciaio consente flessibilità all’attraversamento ed al sostegno degli impianti tecnologici e dei camminamenti di servizio. L’architettura degli uffici (localizzati nell’angolo nord-ovest) è dinamicizzata da una “pelle” ottenuta sovrapponendo tratti di superfici circolari eccentriche tra di loro queste, originariamente previste in vetro, sono realizzate con pannelli frigoriferi della medesima tipologia del fabbricato produttivo.





















